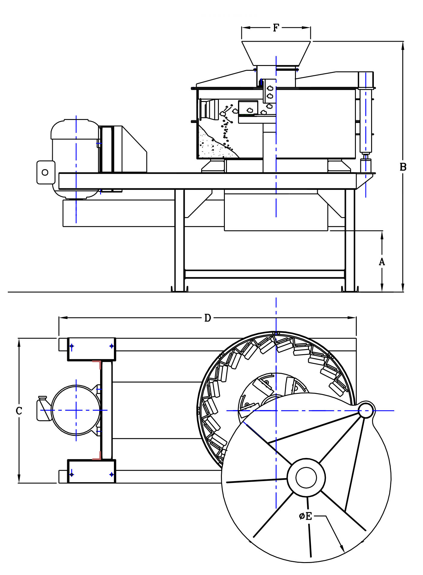
Dik Milli Kırıcı



Her sertlikteki ve aşındırıcılıktaki taş tipleri için uygun, aynı zamanda bakımı ve işletmesi kolay kırıcılardır. Özellikle dere malzemesi kırmak ve kırma kum elde etmek için tasarlanmıştır. İstenilen final ürün boyutu rotor devrinin ayarlanmasıyla elde edilir. Kırıcının içi aşınmalara karşı astar plakalar ile kaplanmıştır. Kırıcının bakımını kolaylaştırmak için üst kapak, hidrolik sistem yardımı ile kolayca açılır şekilde tasarlanmıştır. Ayrıca kırıcı üst kapağında gözetleme kapağı mevcuttur. Final ürünler kübik şekilde olup hem betonun hem de asfaltın kalitesini önemli ölçüde arttırmaktadır.

Teknik Özellikleri

dik milli kırıcı teknik bilgi
dik milli kırıcı teknik çizim